Your shopping bag is empty
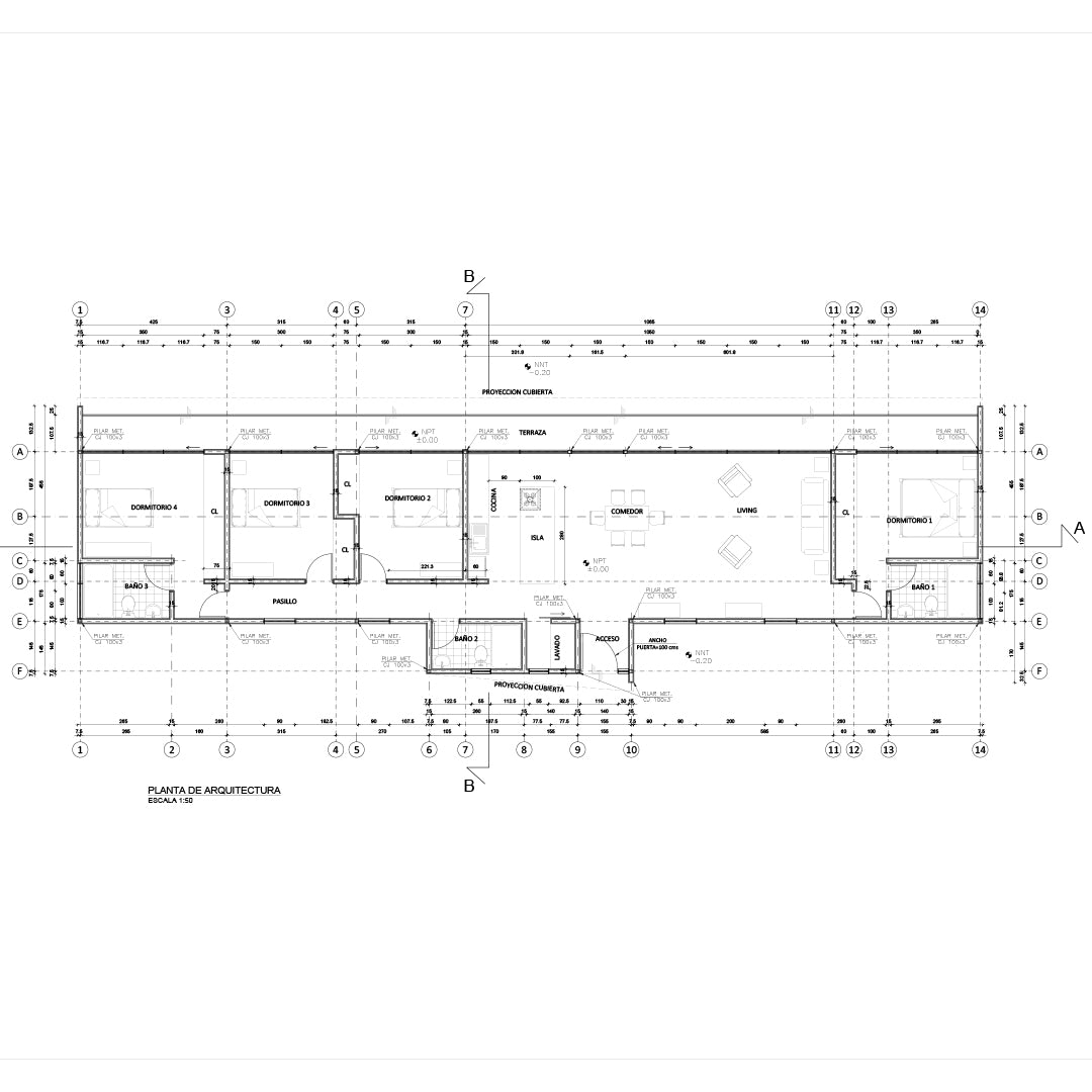
Go to the shopVivienda unifamiliar de una planta que se caracteriza por suvolumen alargado y una cubierta inclinada que enfatiza la integración con elentorno. La fachada norte se abre con ventanales de piso a cielo que permitenvistas panorámicas y óptima captación de luz, mientras que la fachada sur incorporavanos controlados para privacidad y regulación térmica. El diseño ofreceflexibilidad para futuras adaptaciones.
Price :
QTY :
CART TOTALS :
There are items
in your cart
CART TOTALS :
$40.00
$80.00
$40.00
$80.00
$40.00
$80.00
$40.00
$80.00
$40.00
$80.00
$40.00
$80.00
$40.00
$80.00
$40.00
$80.00
$40.00
$80.00
$40.00
$80.00
$40.00
$80.00
$40.00
$80.00